подарок на выбор

При заказе любого дома или бани:

Металлочерепица или Бытовка

в подарок!

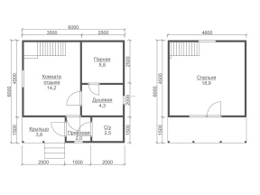
Проект №4 Каркасная баня 6х6

  • Размер: 6х6
  • Площадь застройки: 36 м2
  • Общая площадь: 51 м2
  • Этажность: двухэтажные
  • Особенности: с балконом, с мансардой
двухэтажные

Цены и комплектации

Каркасный дом (150 мм) 6х6 Толщина стен 150 мм от 1130000 руб.

Отправить заказ или вопрос

Комплектация

Площадь застройки: 36 м2
Длина: 6 м
Ширина: 6 м
Общая площадь: 51 м2
Внешний контур (без внутренней отделки и утепления) Под ключ (с отделкой)
Фундамент Свайно-винтовой или ж/б сваи (рассчитываются отдельно)..
Гидроизоляция фундамента Рубероид в два слоя.
Основание (обвязка) Из обрезного бруса 150х150 мм. 150х200 мм. согласно выбранной толщине утепления. Торцевая доска 50х200 мм. Обработка антисептиком.
Цокольное перекрытие Обрезная доска камерной сушки 50х200 мм. с шагом 600 мм. Обработка антисептиком.
Пол черновой Обрезная доска камерной сушки 20х100 мм.
Внешние стены Стойки каркаса из доски камерной сушки 40х150/40х200 мм. с шагом 600 мм. Верхняя и нижняя обвязки из доски камерной сушки 40х150/40х200 мм. Ригель из доски 40х150 мм. Укосины из доски 20х100 мм. Запиливаются в верхнюю и нижнюю обвязки каркаса.
Перегородки Стойки каркаса из доски камерной сушки 40х100 мм. с шагом 600 мм. Верхняя и нижняя обвязки из доски 40х100 мм. Ригель из доски камерной сушки 40х150 мм. Укосины из доски камерной сушки 20х100 мм. Запиливаются в верхнюю и нижнюю обвязки каркаса.
Сборка каркаса На гвозди.
Высота от пола до потолка Баня одноэтажная: 2,5 м. Баня с мансардой: 1-ый этаж- 2,5 м.
2-ой этаж (мансарда)- 2,3 м.
Баня в полтора и два этажа:
1-ый этаж 2,5 м.
2-ой этаж 2,4 м. в полутораэтажной бане.
2,5 м. в двухэтажной бане.
Внешняя отделка стен Имитация бруса камерной сушки, сорт АВ толщиной 17 мм. Монтаж через брусок камерной сушки 40х50 мм. (вентилируемый фасад). Влаго-ветрозащитная мембрана- Ондутис А100.
Внутренняя отделка стен, перегородок Отсутствует. Евровагонка камерной сушки, сорт АВ толщиной 12,5 мм. по рейке 20х40 мм. либо ГКЛ 12,5 мм.
Отделка потолка Отсутствует. Евровагонка камерной сушки, сорт АВ толщиной 12,5 мм. по рейке 20х40 мм. либо ГКЛ 12,5 мм.
Пол чистовой Отсутствует. Шпунтованная доска камерной сушки толщиной 36 мм. сорт АВ. по рейке 20х40 мм. либо шпунтованная ДСП 16 мм. по разряженной обрешётке из обрезной доски камерной сушки 20х100 мм.
Утепление (пол, потолок) Отсутствует. Минеральная вата Knauf 150/200 мм. согласно выбранной толщине утепления.
Утепление стен Отсутствует. Минеральные плиты Knauf, толщиной 150/200 мм. согласно выбранной толщине утепления.
Звукоизоляция перегородок Отсутствует. Минеральные плиты Knauf, толщиной 100 мм.
Пароизоляция (стены, перегородки, пол, потолок) Отсутствует. Ондутис R70.
Отделка парной Отсутствует. Отделка осиновой вагонкой камерной сушки, сорт АВ по фольге, через контррейку 20х40 мм. (вентиляционный зазор). Установка пологов из осины.
Окна Деревянные, двойного остекления.
Двери Входная- металлическая, утеплённая (Россия). Межкомнатные- отсутствует. В парную- отсутствует. Входная- металлическая, утеплённая (Россия). Межкомнатные- филёнчатые. В парную- клиновая (банная).
Наличники на окна и двери Наличник деревянный, строганый, камерной сушки 70-90 мм.
Лестница (при наличии второго этажа) Отсутствует. Деревянная, одно или двухмаршевая. Перила- заводские резные, балясины- заводские точеные, устанавливаются стартовые точёные столбы. Ступени 40х200 мм. Тетива лестницы- 90х140 мм.
Крыша Двускатная, ломаная или вальмовая в соответствии с проектом.
Стропильная система Выполнена из обрезной доски камерной сушки 40х150 мм. Шаг установки стропильных ног 600 мм.
Обрешётка Выполняется из обрезной доски камерной сушки толщиной 20-22 мм. Шаг крепления обрешетки 300 мм. Контробрешётка выполняется из бруска камерной сушки 40х50 мм. Крепится по стропильным ногам (вентиляционный зазор).
Подкровельная мембрана Ондутис А100
Кровельное покрытие (на выбор) Ондулин, Черепица Ондулин.
Фронтоны (при наличии) Каркас из обрезной доски камерной сушки 40х150/40х200 мм. Обшиваются имитацией бруса камерной сушки, сорт АВ толщиной 17 мм. Монтаж через брусок камерной сушки 40х50 мм. (вентилируемый фасад). Влаго-ветрозащитная мембрана- Ондутис А100. Монтаж вентиляционных решёток.
Свесы крыши Ширина 400 мм. Подшиваются вагонкой камерной сушки, сорт АВ.
Терраса/балкон (при наличии) Устанавливаются опорные столбы из строганного бруса камерной сушки 140х140 мм.
Отделка потолка террасы/балкона Отсутствует. Евровагонка камерной сушки толщиной 12,5 мм. сорт АВ.
Пол террасы/балкона Отсутствует. Шпунтованная доска камерной сушки толщиной 36 мм. сорт АВ.
Ограждение террасы/балкона Отсутствует. Перила- строганая доска. Балясины- точеные, фигурные. Либо ограждение в скандинавском стиле. Устанавливаются ступени у входа.
Допуск на геометрические параметры Составляет +/- 50 мм по длине с каждой стороны.
Допускается стыковка имитации бруса, вагонки и половой доски По всему периметру стен бани (если ширина и длина бани более 6,0 метров). Вагонки и доски пола в каждой отдельной комнате.
Допуски по имитации бруса, вагонке, доске +/- 5 мм.
В стоимость включена Доставка комплекта материала в радиусе 500 км. от г. Пестова Новгородской области и сборка дома на вашем участке.
Гарантия 5 лет.
Печь По запросу.
Бытовка строительная 2,0х3,0 м. каркасно-щитовая. Стоимость 18000 руб. Остаётся на участке Заказчика.
Туалет 1,0х1,0 м. каркасно-щитовой. Стоимость 12000 руб. Остаётся на участке Заказчика.
Генератор Стоимость аренды на весь срок строительства 10000 руб. ГСМ за счёт Заказчика.
Популярные проекты

Дом из бруса №10

  • с балконом, с маленькой террасой, с мансардой S = 40 м2
  • цена от: 1 380 481 Руб
Подробнее

Дом из бруса №32

  • с балконом S = 92.2 м2
  • цена от: 1 380 481 Руб
Подробнее

Дом из бруса №37

  • S = 113.03 м2
  • цена от: 1 380 481 Руб
Подробнее

Дом из бруса №46

  • с балконом, с эркером S = 100.2 м2
  • цена от: 1 380 481 Руб
Подробнее

Дом из бруса №47

  • с маленькой террасой S = 65.9 м2
  • цена от: 1 380 481 Руб
Подробнее

Дом из бруса №52

  • с эркером S = 74.7 м2
  • цена от: 1 380 481 Руб
Подробнее

Дом из бруса №58

  • S = 166.6 м2
  • цена от: 1 380 481 Руб
Подробнее

Дом из бруса №60

  • с балконом, с маленькой террасой, с эркером S = 104.6 м2
  • цена от: 1 380 481 Руб
Подробнее

Дом из бруса №4

  • с мансардой S = 30.1 м2
  • цена от: 1 380 481 Руб
Подробнее

Дом из бруса №23

  • S = 48 м2
  • цена от: 1 380 481 Руб
Подробнее

Каркасный дом №10

  • с балконом, с маленькой террасой, с мансардой S = 40 м2
  • цена от: 1 380 481 Руб
Подробнее

Каркасный дом №37

  • S = 113.03 м2
  • цена от: 1 380 481 Руб
Подробнее

Каркасный дом №46

  • с балконом, с эркером S = м2
  • цена от: 1 380 481 Руб
Подробнее

Каркасный дом №47

  • с маленькой террасой S = м2
  • цена от: 1 380 481 Руб
Подробнее

Каркасный дом №52

  • с эркером S = м2
  • цена от: 1 380 481 Руб
Подробнее

Каркасный дом №58

  • S = м2
  • цена от: 1 380 481 Руб
Подробнее

Каркасный дом №60

  • с балконом, с маленькой террасой, с эркером S = м2
  • цена от: 1 380 481 Руб
Подробнее

Каркасный дом №4

  • с мансардой S = 30.1 м2
  • цена от: 1 380 481 Руб
Подробнее

Каркасный дом №23

  • S = 74.58 м2
  • цена от: 1 380 481 Руб
Подробнее

Каркасный дом №32

  • с балконом S = 92.2 м2
  • цена от: 1 380 481 Руб
Подробнее